
У Рівному на честь Героя України, митця Максима Кривцова, змінили назву вулиці 22.02.2026 15:40 Укрінформ У Рівному одну із нових вулиць буде названо на честь Максима Кривцова — захисника України, поета, фотохудожника та громадського активіста.
Про це проінформували в Телеграм-каналі Рівненської міської ради, передає Укрінформ.
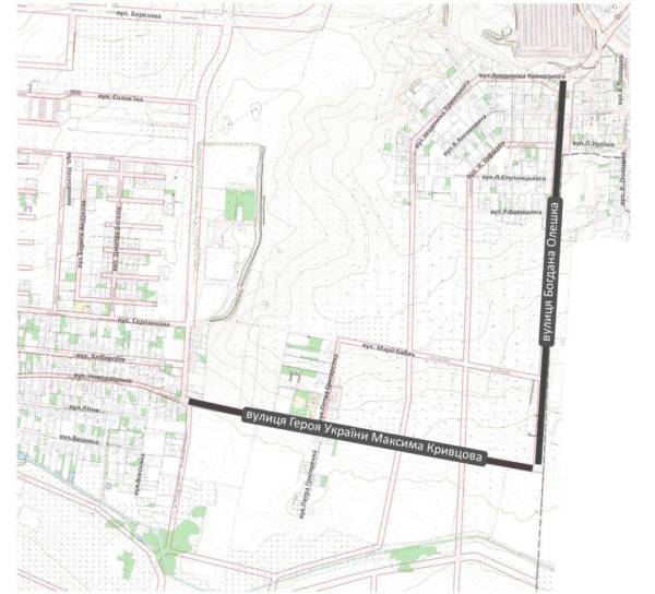
Зазначається, що дане рішення було прийнято депутатами Рівненської міськради під час сесії. Ім’ям митця назвали одну з новостворених вулиць у районі забудови вулиць Новодвірська, академіка Кримського у місті Рівне.
"Максим Кривцов був дієвим учасником Революції Гідності, виконував обов’язки в зоні проведення антитерористичної операції, а з початком повномасштабного вторгнення з власної ініціативи вступив до лав Збройних Сил України. Крім військової служби, він був знаний як обдарований поет і фотограф, активно займався суспільною діяльністю", – сказано в повідомленні.

Як інформувалося, 7 січня 2024 року 33-річний оборонець загинув при виконанні бойового завдання на Харківському напрямку.
У Рівненській міській раді підкреслили, що присвоєння імені Максима Кривцова одній з вулиць Рівного є вираженням поваги та вдячності за його відвагу, вірність Україні та значний внесок у битву за її волю і незалежність.
Раніше повідомлялося, що у п’яти містах Бразилії відбулися презентації книги Poemas da Seteira («Вірші з бійниці») – португальського перекладу збірки віршів воїна та поета Максима «Далі» Кривцова, який поліг на російсько-українській війні.
Рівне Герой України Кривцов Перейменування Поет
Источник: Джерело
